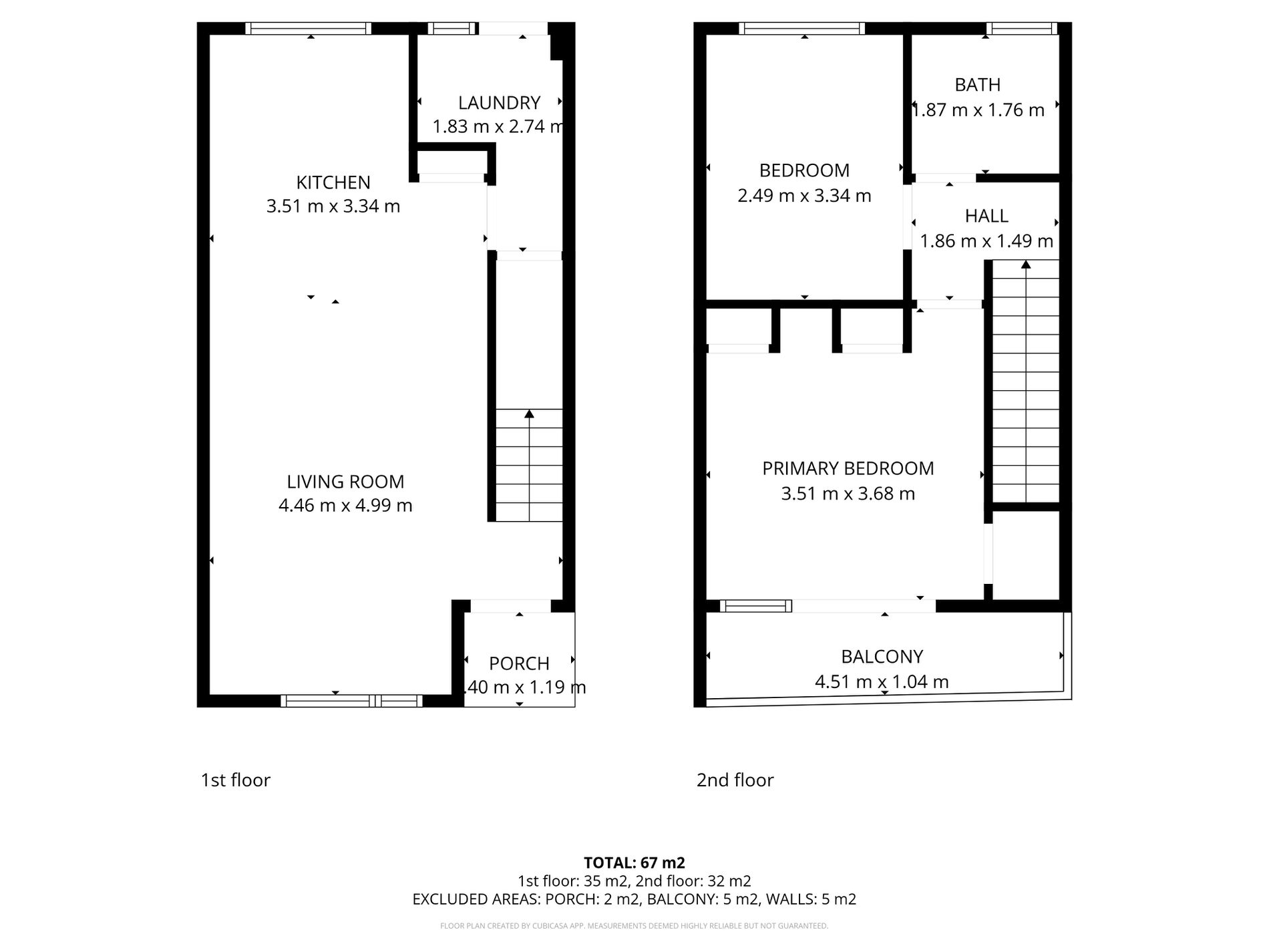
This well-presented two-bedroom unit is conveniently located in Central Dubbo, offering easy access to the CBD and public transport. Spread over two levels, the home provides comfortable, low-maintenance living with practical features throughout.
Features include:
• Built-in wardrobes to the main bedroom
• Reverse-cycle split system air conditioning upstairs and downstairs for year-round comfort
• Private balcony, ideal for relaxing
• Single allocated car space
• Close proximity to shops, services and transport options
Features
- Balcony















